Это займёт всего 15 секунд
Нажимая кнопку Отпраить, Вы соглашаетесь с Политикой конфиденциальности
Заполните форму на сайте или напишите нам на russia@elpaso-studio.ru или позвоните по номеру +7(985)9207632
Компания ELPASO ведёт все этапы архитектурных, дизайнерских проектов общественных и частных интерьеров от разработки до реализации.
Всю работу над проектами мы разделяем на 3 основных этапа, которые имеют свою стоимость и сроки выполнения. И четвёртый заключительный этап: сдача-приёмка объекта заказчикам к новоселью. Нажмите на этап чтобы узнать подробную информацию
Рабочий архитектурный проект выполняется на основании ЭП (эскизного проекта). В состав РП входят чертежи для проведения отделочных работ и утверждённый эскизный проект. После подписания Заказчиком документации всего архитектурного альбома (с чертежами сносимых и вновь воздвигаемых перегородок, раскладками полов, стен, коммуникаций, электрики) приступает к работе строительно-отделочная бригада. Руководитель строительной бригады несёт ответственность по договору с Заказчиками за соответствие работ проектной документации, качество и сроки.
По необходимости для клиентов компания ELPASO организует ВЫПОЛНЕНИЕ и СОГЛАСОВАНИЕ проектов СПЕЦИАЛИЗИРОВАННОЙ ДОКУМЕНТАЦИИ по электрике и получение результатов лаборатории. В случаях переустройства и перепланировок квартир мы заключаем договор на выполнение технического заключения и проекта в АО МНИИТЭП; необходимые акты, журналы работ в Мосжилинспекции. Выполняем проекты ОВ (отопление) и ВК (вентиляции) и проводим согласование в управляющих компаниях жилищных комплексов.
1. Состав проекта, пояснительная записка
2. Обмерный чертеж с привязкой инженерных коммуникаций.
3. План демонтажа перегородок и инженерных коммуникаций.
4. План возводимых перегородок с маркировкой оконных и дверных проемов, спецификация дверей с указанием размеров дверных проемов и спецификация заполнения проёмов.
5. План расстановки выбранной мебели.
6. План размещения санитарно-технического оборудования с привязкой выпусков.
7. План потолка с указанием типа используемого материала, отдельных узлов и сечений. (Количество чертежей зависит от уровня сложности потолка).
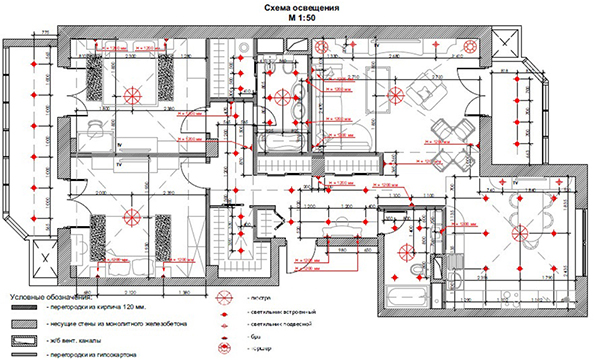
8. План размещения осветительных приборов, привязка выпусков освещения, план выключателей с указанием включения групп светильников.
9. Спецификация осветительного оборудования с указанием их типа и мощности и других специальных требований.
10. План размещения электрических розеток и электровыводов с привязкой геометрических размеров.
11. План размещения электрического подогрева пола с привязкой регулятора.
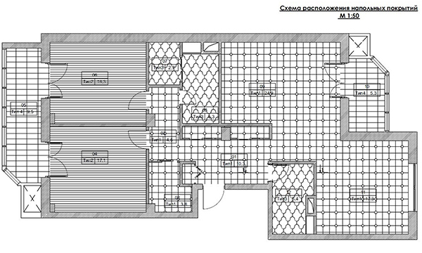
12. План пола с указанием: отметки уровня пола, типа напольного покрытия, рисунка и размеров. Разрез конструкции пола с указанием слоев покрытия. (Количество чертежей зависит от уровня сложности).
13. Экспликация напольных покрытий с указанием площади и артикула выбранного материала.
14. Разрез и развертка стен с декоративными элементами и спецификация декоративных элементов. (количество чертежей зависит от количества декоративных элементов).
15. Развертка стен с раскладкой плитки с указание размеров, артикула и площади выбранного материала.
16. Чертежи заказных изделий (выполняются в случае необходимости).
17. Ведомость отделки.
Разработка проектной документации выполняется в архитектурных программах ArchiCad, АutoCad. Визуализации и моделирование интерьеров в 3D Max.